1. Amperemeter
2. Kontrol kondensasi
3. Piranti pangayoman mikrokomputer
6. Barometer
7. Tampilan daya
8. Indikator fault
9. Mekanisme operasi listrik
10. Mekanisme operasi manual
11. Kunci elektromagnetik
12~13 . Trafo saiki
14. Kabel plug
15. Trafo voltase
16. Aluminium alloy piring panas
KXRM6-12 Kabinet GIS Tipe Gabungan cocok kanggo suhu dhuwur lan sithik (+40 ℃~-40 ℃), kelembapan, bledug, polusi uyah, tambang, papan sing dhuwur (1000m) lan lingkungan liyane. Kecemplung jangka pendek ing banyu sajrone 24 jam ora mengaruhi panggunaan. Cathetan: Yen dhuwure luwih dhuwur, tuduhake ketinggian tartamtu.
Kabinet GIS Tipe Gabungan KXRM6-12 cocog karo standar ing ngisor iki
IEC60056, IEC60298, IEC60129, IEC60420, IEC60265, IEC60694 etc...
GB3804, GB3906, GB11022 lsp...
◆ Gas SF6 ing Kabinet GIS Tipe Gabungan KXRM 6-12 digunakake minangka media pemadam lan insulasi busur.
◆ Kabinet ngalih wis disegel lan terisolasi; Busbars, ngalih lan bagean urip rampung terlampir ing Nihan stainless steel.
◆ Rongga kapenuhan gas 1.4bar SF6, lan tingkat pangayoman tekan IP67: kabeh piranti ngalih rampung ora kena pengaruh dening kahanan lingkungan njaba, kang bisa njamin operasi normal saka ngalih malah ing kasus nemen kayata kecemplung banyu short-term, lan prodhuk punika free pangopènan.
◆ Kabinet ngalih nduweni piranti interlocking "lima-nyegah" sing sampurna, sing ngilangi kegagalan operasi personel lan peralatan sing bisa disebabake dening misoperation manungsa.
◆ Kabeh lemari switch duwe saluran relief tekanan aman sing bisa dipercaya, sing bisa njamin keamanan pribadi operator sanajan ing kasus sing ekstrem.
◆ Kabinet dipérang dadi kombinasi unit tetep lan kombinasi unit sing bisa ditambahi.
◆ Kabinet biasane mlebu lan metu saka ngarep, lan uga bisa ditambah utawa ditambah saka sisih miturut posisi instalasi sing beda.
◆ Ukuran kabinèt trep kanggo nginstal, lan bisa cocok kanggo panggonan karo papan sempit lan kahanan lingkungan miskin.
◆ Kabinet bisa dilengkapi piranti listrik, remot kontrol lan ngawasi miturut kabutuhan pangguna sing beda-beda.
|
Item |
Unit |
Modul C |
Modul F |
Modul V |
Modul CB Kab |
||
|
|
Ngalih beban |
digabungake |
Ngalih vakum |
Isolasi Switch/Ground switch |
VCB |
Isolasi Switch/Ground switch |
|
|
Dirating voltase |
KV |
12/24 |
12/24 |
12/24 |
12/24 |
12/24 |
12/24 |
|
Frekuensi kerja tahan voltase |
KV |
42/50 |
42/50 |
42/50 |
42/50 |
42/50 |
42/50 |
|
Impuls kilat tahan voltase |
KV |
95/125 |
95/125 |
95/125 |
95/125 |
95/125 |
95/125 |
|
Rated saiki |
A |
630/630 |
CATETAN1 |
630/630 |
|
1250/630 |
|
|
Breaking saiki |
A |
630/630 |
|
|
|
|
|
|
Arus kabel putus |
A |
135/135 |
|
|
|
|
|
|
5% Load breaking saiki |
A |
31.5/- |
|
|
|
|
|
|
Grounding fault breaking saiki |
A |
200/100 |
|
|
|
|
|
|
Grounding fault kabel charging breaking current |
A |
115/87 |
|
|
|
|
|
|
Short-circuit breaking saiki |
KA |
|
CATETAN2 |
20/16 |
|
25/20 |
|
|
Kemampuan nutup |
KA |
63/52.5 |
CATETAN2 |
50/40 |
50/40 |
63/50 |
63/50 |
|
Arus tahan jangka pendek (2s) |
KA |
25/- |
|
|
|
|
|
|
Arus tahan jangka pendek (3s) |
KA |
-/21 |
|
20/16 |
20/16 |
25/20 |
25/20 |
|
urip mekanik |
Wektu |
5000 |
3000 |
5000 |
2000 |
5000 |
5000 |
CATETAN1: Gumantung ing saiki dirating saka sekring
CATETAN2: Gumantung ing sekring voltase dhuwur
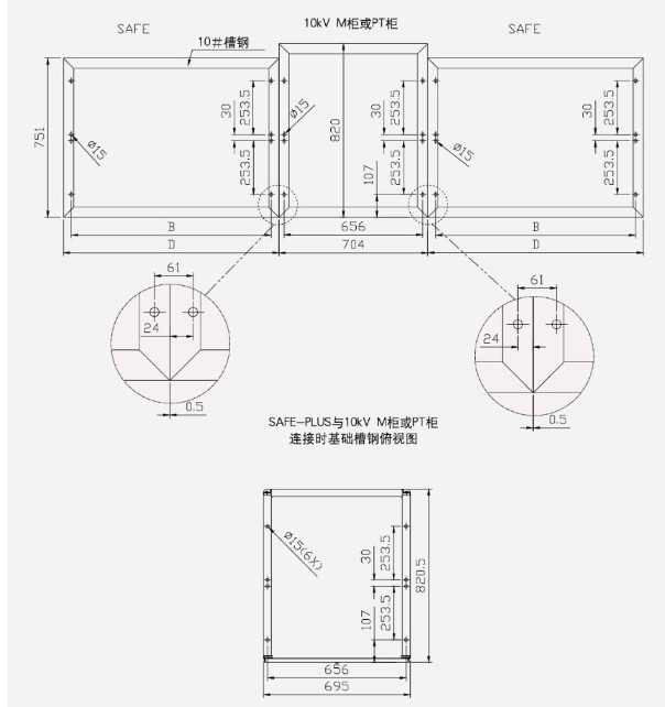
▶Konfigurasi kabinet D Waca "Modul Sambungan Kabel tanpa Grounding Knife" kanggo konfigurasi lan karakteristik standar.
▶Konfigurasi kabinet C Waca "Modul Ngalih Muat" kanggo konfigurasi lan karakteristik standar.
▶Konfigurasi kabinet F Waca "Modul Ngalih Vakum" kanggo konfigurasi lan karakteristik standar.
Kombinasi standar Kabinet GIS Tipe Gabungan KX-RM6 uga bisa nyedhiyakake konfigurasi ing ngisor iki
▶ Indikator tegangan kapasitif saka bushing mlebu
▶ Saben ruang udara dilengkapi pengukur tekanan kanggo ngawasi kapadhetan SF6.
▶ Ngangkat lug
▶ Handle operasi
□ Modul saklar beban C
○ Konfigurasi lan fitur standar
▶630a busbar
▶ Saklar beban/grounding telu stasiun
▶ Mekanisme operasi spring tunggal telung stasiun kanthi rong saklar beban independen lan poros operasi saklar grounding.
▶ Indikasi posisi saklar beban lan saklar grounding
▶ Bushing metu horisontal ing ngarep, 630A 400 seri bolt bushing.
▶Indikator tegangan kapasitif kanggo nuduhake elektrifikasi bushing
▶Kanggo kabeh fungsi switch, trep kanggo nginstal piranti gembok ing panel.
▶ Pengukur tekanan gas SF6 (mung siji ing saben kotak gas SF6)
▶ Grounding busbar
▶ Interlocking antarane switch grounding lan panel ngarep kamar kabel
▶ Ekstensi bus sing dicawisake
▶ Bus njaba
▶ Load switch mekanisme operasi listrik DC24V/48V/110V/220V; AC 110 V/220 V
▶Indikator sirkuit pendek lan gangguan lemah Pengukuran trafo arus dering lan ammeter
▶ Transformator arus dering lan meteran watt-jam
▶ Penangkal kilat utawa sirah kabel dobel bisa dipasang ing lengen mlebu kabel.
▶Sambungan kunci Jalur masuk Penguncian ground langsung (saklar grounding ngunci nalika bushing urip) AC/DC 110 V/220 V. kontak tambahan
▶Load switch posisi 2NO+2NC, grounding switch posisi 2NO+2NC, pressure gauge 1NO dengan sinyal, dan arc extinguisher 1NO dengan kontak sinyal.
▶ Piranti sekunder bisa diinstal ing
▶Kamar baris sekunder ing ndhuwur kabinet switch, kothak voltase sithik ing sisih ndhuwur kabinet switch.
○ Konfigurasi lan fitur standar
▶630a busbar
▶Saklar beban telung stasiun, ujung pertama sekring disambungake kanthi mekanik karo saklar grounding ing mburi sekring.
▶Mekanisme operasi spring telung stasiun, kanthi rong saklar beban independen lan poros operasi saklar grounding.
▶ Indikasi posisi saklar beban lan saklar grounding
▶ Sekring laras
▶Sekring dipasang horizontal.
▶ Indikasi trip sekering Bushing metu horisontal ing ngarep, busing plug-in seri 200 200A.
▶Indikator tegangan kapasitif kanggo nuduhake elektrifikasi bushing
▶Kanggo kabeh fungsi switch, trep kanggo nginstal piranti gembok ing panel.
▶ Pengukur tekanan gas SF6 (mung siji ing saben kotak gas SF6)
▶ Grounding busbar
▶Parameter sekring kanggo proteksi trafo yaiku 12KV, maksimal 125A, 24KV lan maksimal 63A.
▶ Interlocking antarane switch grounding lan panel ngarep kamar kabel.
▶ Ekstensi busbar sing dilindhungi
▶Motor bus eksternal kanggo operasi saklar beban 24V/48V DC 110V/220V DC/AC.
▶Kumparan trip paralel 24V/48V DC 110V/220V DC/AC.
▶Kumparan tutup paralel 24V/48V DC 110V/220V DC/AC.
▶ Transformator arus dering lan ammeter Pengukur trafo arus dering lan meteran watt-jam
▶ Pengunci grounding langsung saluran mlebu (saklar grounding ngunci nalika bushing urip) AC/DC 110 V/220 V. kontak tambahan
▶ Posisi penutupan beban 2NO + 2NC, posisi switch grounding 2NO + 2NC, sekering blowing 1NO, pengukur tekanan 1NO dengan sinyal, dan pemadam busur 1NO dengan kontak sinyal.
▶Piranti sekunder bisa dipasang ing ruang baris sekunder ing sisih ndhuwur kabinet switch lan kothak voltase sithik ing sisih ndhuwur kabinet switch.
□ Modul Meter M
○ Konfigurasi lan fitur standar
▶ Kabinet metering 12KV
▶ 2 trafo saiki
▶ 2 trafo tegangan
▶6pcs 400-seri bushings digunakake kanggo nyambungake fleksibel lengkap bus external GSFR6-12, karo welingan ndhuwur lan stopkontak ngisor.
▶Flame breaker kanggo nglindhungi PT
▶Komponèn tekanan rendah 1 voltmeter karo switch ganti, 1 ammeter karo switch ganti, jembar x dhuwur x ambane = 696 × 1806 × 820mm.
○ Konfigurasi lan fitur opsional
▶ 3 trafo saiki
▶3 trafo voltase penangkal petir
▶ Indikator tegangan kapasitif kanggo nuduhake yen switchgear diisi
▶Komponèn tekanan rendah :1 meteran daya, 1 meter daya reaktif.
□ Modul VCB CB
○Konfigurasi lan fitur standar&Opsional
▶ Penangkal kilat dipasang ing kabel busbar 1250a/630a sing mlebu.
▶Pemutus sirkuit vakum kanggo proteksi garis 1250a/630a
▶ Trafo saiki
▶Pemutus sirkuit vakum VD4X0 dioperasikake kanthi listrik 10VDC
▶ Trafo voltase
▶Operasi listrik UXO, saklar isolasi/grounding telu stasiun ndhuwur pemutus sirkuit vakum. ▶ Unit proteksi lan kontrol REF542plus (karo CT protèktif)
▶Shunt trip coil 110V/220V DC
▶Kumparan tutup 110V/220VDC
▶400-seri bolt bushing saka stopkontak bushing 1250A/630A disusun horisontal ing ngarep.
▶ Ekstensi Bus Reservasi Indikator Tegangan Kapasitif 1250A/630A kanggo Nduduhake Bushing Live
▶ Pengukur tekanan gas SF6 (mung siji ing saben kothak gas SF6) Jembar x dhuwur x ambane = 696× 1806× 781 mm. ▶Urutan on-off: O-0.3s-CO-180s-CO.
▶ Sensor tekanan gas
1. Kontak bantu Kabeh saklar beban lan pemutus sirkuit bisa dilengkapi 2NO + 2NC sing nuduhake posisi ngalih. A trip coil podo (AC utawa DC) bisa diinstal ing ngalih trafo lan mbobol sirkuit, lan komponen kontrol kurang voltase dumunung konco panel ngarep.
2. Indikasi voltase Indikator voltase kapasitif nuduhake manawa busing diisi daya utawa ora, lan soket kasebut bisa digunakake kanggo fase nuklir.
3. Short circuit lan indikator fault lemah Kanggo nggampangake lokasi fault, modul ngalih kabel bisa dilengkapi karo short circuit lan indikator fault grounding kanggo deteksi fault prasaja.
4. Operasi listrik Iku minangka skema standar kanggo mekanisme operasi manual unit ngalih kabel lan unit trafo. Sampeyan uga bisa milih nginstal mekanisme operasi listrik. Ngalih kabel, pemutus sirkuit vakum lan switch grounding kabeh dilakokno dening mekanisme sing ana ing mburi panel ngarep. Kabeh saklar lan pemutus sirkuit bisa dioperasikake kanthi gagang operasi (konfigurasi standar), utawa bisa dilengkapi mekanisme operasi motor (aksesoris). Nanging, ngalih grounding mung bisa dilakokno kanthi manual, lan mekanisme karo kemampuan kanggo nutup saiki fault diatur. Mekanisme operasi listrik bisa gampang diwujudake kanthi tahapan.
5. Sambungan kabel Bushing standar sesuai karo DIN47636 dipasang. Kabeh bushings duwe dhuwur sing padha saka lemah lan dilindhungi dening piring tutup kamar kabel. Sawetara piring tutup bisa interlocked karo ngalih grounding, lan khusus pindho piring tutup kamar kabel uga bisa digunakake kanggo kabel pindho baris mlebu.
6. Indikator tekanan Biasane dilengkapi indikator tekanan, sing dibentuk saka pengukur tekanan. Kajaba iku, kontak listrik bisa diwenehake kanggo nuduhake pengurangan tekanan.
7. Kunci tombol Kunci tombol kanggo pemutus sirkuit, switch beban lan switch ground bisa diinstal. Bisa dilengkapi kunci semi-papan perlindungan interlocking, sing cocog kanggo pemutus sirkuit, switch beban lan switch grounding.
8. Arc interrupter Kabeh unit jaringan ring bisa dilengkapi arresters busur. Nalika arcing ana ing njero, arrester busur bakal kanthi otomatis nutup bushing mlebu, kalebu modul D, DE lan V, lan kabeh modul kabel bisa dilengkapi arrestor busur. Padha kudu pesen karo unit lan ora bisa ngganti. Tumindak pemadam busur bisa dituduhake kanthi cara iki, lan kontak listrik ing kabinet SF6 disambungake menyang terminal ing mburi panel ngarep.
◆ Skema 1 SA+CCF+
Pasang arrester kilat ing bis lan ninggalake kanggo expansion.
Cathetan: Jumlah unit switch ora kurang saka 3.
◆ Skema 2 CCF+
Pasang arrester kilat menyang baris mlebu lan ekspansi cadangan.
◆ Skema 3 W+M+FFF
Pitungan sisih HV
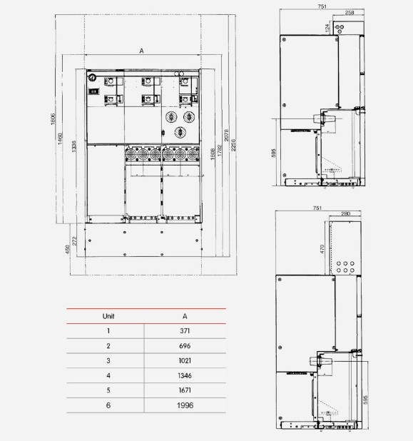
● Tabel struktur lan dimensi saka Kabinet GIS Tipe Gabungan KXRM6-12



alamat
No.228 Jalan Weishiqi, Zona Pembangunan Ekonomi Yueqing, Wenzhou City, Provinsi Zhejiang, China
Telp