Produk
Piranti ngalih mbukak dilengkapi nganggo tandha logam
  • Piranti ngalih mbukak dilengkapi nganggo tandha logamPiranti ngalih mbukak dilengkapi nganggo tandha logam
  • Piranti ngalih mbukak dilengkapi nganggo tandha logamPiranti ngalih mbukak dilengkapi nganggo tandha logam
  • Piranti ngalih mbukak dilengkapi nganggo tandha logamPiranti ngalih mbukak dilengkapi nganggo tandha logam
  • Piranti ngalih mbukak dilengkapi nganggo tandha logamPiranti ngalih mbukak dilengkapi nganggo tandha logam
  • Piranti ngalih mbukak dilengkapi nganggo tandha logamPiranti ngalih mbukak dilengkapi nganggo tandha logam

Piranti ngalih mbukak dilengkapi nganggo tandha logam

Piranti ngalih mbukak Kyn28-12 sing dilengkapi karo logam kexun pabrik yaiku switchgear medium-voltage 12kv sing digunakake ing saindenging jagad. Cocog kanggo tanduran sing, substusy, perusahaan industri lan pertambangan lan sistem distribusi liyane, lan desain sing aman lan modular.
Model: Kyn28-12
Merek: KEXR

● Maksud Model

Open Switch Device Equipped With Metal Armoring

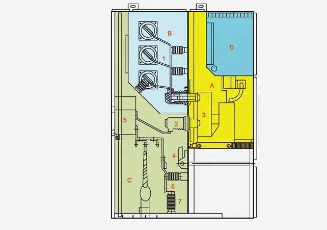
Gambar diagram skematis piranti sing dilengkapi karo struktur wawasan logam

Open Switch Device Equipped With Metal Armoring

AcT

Piranti ngalih mbukak Kyn28-12 sing dilengkapi karo tandha-tandha ing ngisor iki:

1. EC-29,BT3906-1991 3.DLvt404-1997 4.Gb/t11022-1999

Piranti ngalih mbukak kanthi wajib logam kalebu rong bagian: kabinèt tetep lan bagean sing bisa dilengkelake (handcart kanggo cendhak). Nihan piranti ngalih mbukak dilengkapi nganggo lapisan logam lan partisi saben unit fungsional dibandel dening piring baja sing dilapisi aluminium. Tingkat perlindungan cangkang kasebut udakara Ép4x, lan level perlindungan saben papan pemisahan kompartemen lan lawang sirkuit breaker yaiku P2X nalika dibukak. Piranti ngalih mbukak kyn2 Diwenehi bisa diinstal lan debug ing ngarep, saengga bisa dipasang ing tembok. Kauntungan paling gedhe kanggo nginstal ing tembok yaiku bisa ngirit ruang lantai. Kajaba iku, bisa diinstal tanpa tembok, yaiku jinis pangopènan kaping pindho. Tata letak struktur internal saka loro ora konsisten, lan kauntungan bisa dadi gampang perawatan.

 

◆ SPLE lan pemisahan

Shell lan pemisahan piranti saklar sing mbukak dilengkapi karo plato baja zink sing diimpor kanthi dhuwur sing diimpor kualitas dhuwur sawise ditarik dening alat mesin CNC, saéngga dilengkapi keseragaman sing ukurane. Nduwe resistensi karat korosi lan resistensi oksidasi sing kuwat, lan duwe kekuwatan mekanik sing luwih dhuwur tinimbang piring baja sing padha. Kabinet ngalih dipérang dadi ruangan handcart (komparasi sirkuit breaker), ruangan bis, ruangan kabel, kamar kabel lan relay ruangan instrumen (room voltase sithik) kanthi pemisahan. Nihan saben unit kanthi bebas.

Ringkesan Produk

Shell lan pemisahan piranti ngalih mbukak dilengkapi piring baja sing diluncurake ing logam utawa piring baja sing diolah sawise diproses sawise diproses lan dibengkok dening kabinet mesin CNC, saéngga dilindhungi keseragaman kanthi ukuran. Plato baja baja aluminium ditutupi duwe efek anti-karat lan anti-oksidasi sing kuwat, lan duwe kekuwatan mekanik sing luwih dhuwur tinimbang piring beri sing padha. Kabinet saklar dipérang dadi ruangan tangan, ruangan bis, kamar kabel lan relay ruangan instrumen kanthi partisi, lan cangkang saben unit duwe grounding mandiri. Pintu Kabinet saklar kabeh disemprotake karo plastik elektrostatik kanggo nggawe lumahing resistensi pengaruh, resikan currosion lan tampilan sing apik (warna bisa disesuaikan dening pangguna).

◆ Dimensi Outline

Dimensi garis garis piranti ngalih mbukak piranti sing dilengkapi karo ngisor iki:

Dhuwur (B)

2300mm

Jembaré (a)

Nalika saiki arus bis cabang ing ngisor 1600a lan arus breaking circuit yaiku 31.5ka,

800mm

Nalika dirating saiki bis cabang ing ndhuwur 1600a.

1000mm

Ambane (c)

Garis mlebu kabel lan metu

1500mm

Line mlebu lan metu

1660mm

Bobot

800-1200 kg

 


Open Switch Device Equipped With Metal ArmoringOpen Switch Device Equipped With Metal Armoring

 

◆ Komponen utama

Open Switch Device Equipped With Metal ArmoringOpen Switch Device Equipped With Metal Armoring

 

Hot Tags: Piranti ngalih mbukak dilengkapi nganggo whates logam, peralatan ngalih mbukak, pabrik china, kexun listrik
Kirim Pitakonan
Info kontak
Kanggo pitakon babagan kothak cabang kabel, switchgear dhuwur voltase, switchgear voltase rendah utawa dhaptar rega, tinggalake email sampeyan lan kita bakal sesambungan sajrone 24 jam.
X
Kita nggunakake cookie kanggo menehi pengalaman browsing sing luwih apik, nganalisa lalu lintas situs lan nggawe konten pribadi. Kanthi nggunakake situs iki, sampeyan setuju kanggo nggunakake cookie. Kebijakan Privasi
nolak Nampa